




umsetzung brandschutzmaßnahmen
grundschule udersleben


neubau wintergarten
bad frankenhausen

Ertüchtigung
grundschule am tischplatt
bad frankenhausen

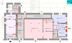
umbau und sanierung
mehrfamilienwohnhaus
kindelbrück


bauleitplanung
windpark






umsetzung brandschutzmaßnahmen
grundschule udersleben


neubau wintergarten
bad frankenhausen

Ertüchtigung
grundschule am tischplatt
bad frankenhausen

umbau und sanierung
mehrfamilienwohnhaus
kindelbrück


bauleitplanung
windpark